Inicio / à venda / Terreno / Cavalhada / Porto Alegre / Código 65495-MF
  • 5161m²
  • Terreno Para Comprar


Terreno à venda com 5161m², Avenida Eduardo Prado no bairro Cavalhada em Porto Alegre

???? TERRENO À VENDA – Rua Eduardo Prado | Porto Alegre
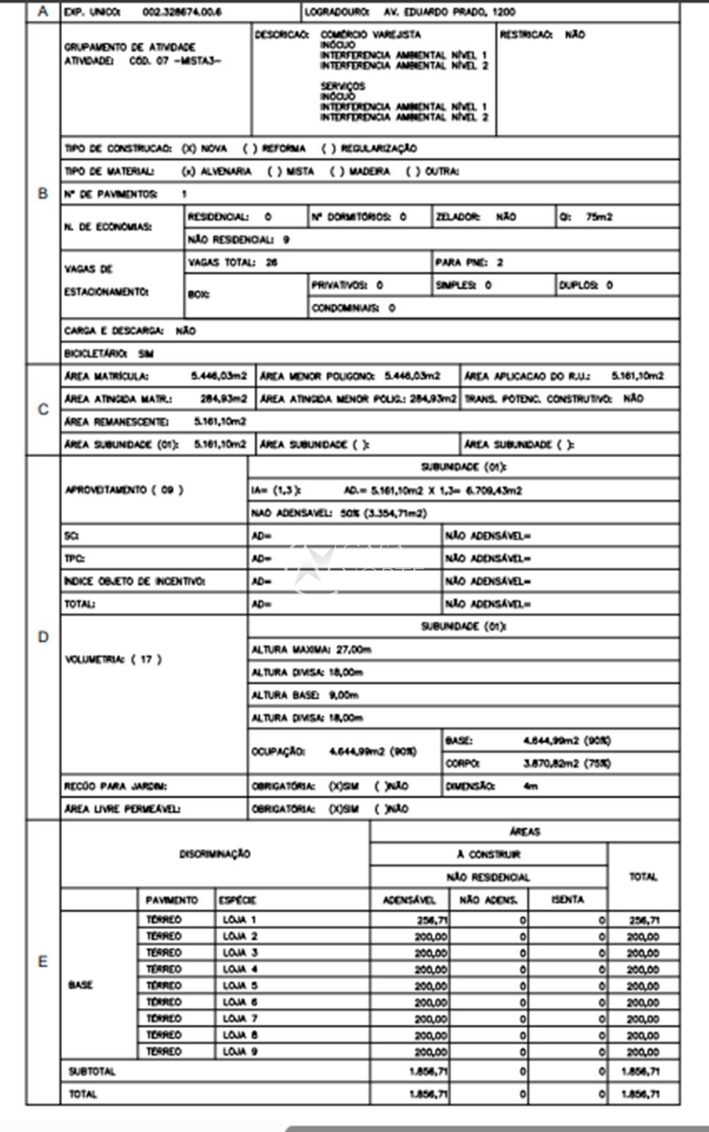
5.161 m2 ampla frente comercial com 77 metros
projeto APROVADO E LICENCIADO para mall com 9 lojas , ´pode começar as obras, de imediato.
Localização estratégica
Situado em uma das regiões mais valorizadas e tradicionais da zona sul, com fácil acesso a pontos essenciais da cidade. Excelente opção para quem busca investir, construir ou expandir negócios.
???? Características do terreno:
???? Área ampla e bem distribuída
????️ Terreno plano e de fácil construção
???? Frente regular e ótima profundidade
???? Arborização no entorno, proporcionando um ambiente agradável
????️ Espaço ideal para estacionamento, loja, depósito ou residência
???? Diferenciais da localização:
???? Próximo a mercados, farmácias e comércios importantes
???? Fácil acesso ao transporte público
???? Região com escolas, serviços e conveniências
???? Excelente para uso comercial ou residencial
???? Ideal para:
????️ Construção de loja, galpão ou empreendimento comercial
???? Projeto residencial
???? Investidores e construtoras
???? Quem busca localização privilegiada com grande potencial de valorização


Veja mais
fotos do imóvel